Salter Street, Hockley Heath, Solihull, B94 6DQ
Set back from the road behind a timber gate, the property features a generous driveway, ample parking, and a large, well-maintained landscaped garden that blends character with modern comfort, with open countryside views beyond.
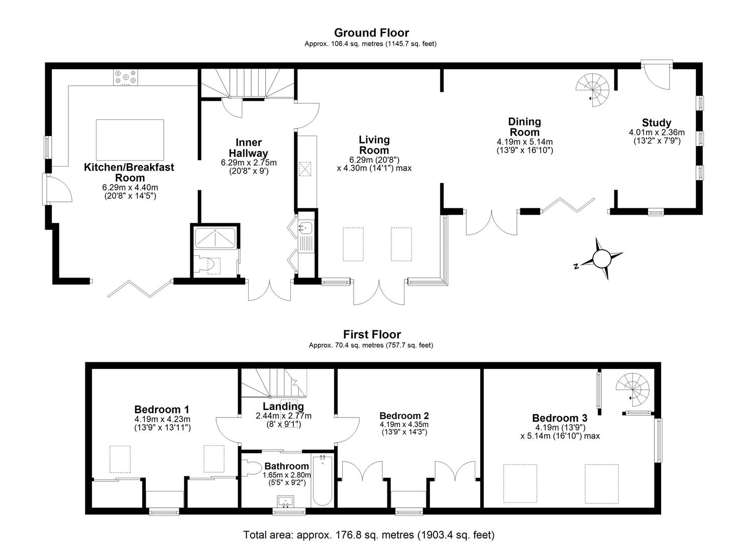
Inside, the home opens with a striking study featuring vaulted ceiling, exposed beams and large picture windows, leading into a spacious open-plan living and dining area with warm oak flooring, stylish bi-fold doors, and a cosy log burner. A spiral staircase leads to a delightful mezzanine bedroom, while the inner hall provides access to a practical utility area and a sleek modern shower room.
The bespoke, well-equipped kitchen and family room features classic shaker-style cabinetry, solid oak worktops, a central island, and a welcoming seating area—ideal for everyday living and entertaining.
Upstairs, two further bedrooms include built-in wardrobes and enjoy lovely garden and countryside views. They are served by a well-appointed family bathroom with practical, stylish fittings and further views over the surrounding gardens and countryside beyond.
The generous rear garden is a standout feature, offering a peaceful open aspect with scenic views. The space includes a paved sun terrace, timber-framed, pitched tiled roof bar, outdoor kitchen, tranquil pond, and sweeping lawns bordered by mature trees and colourful planting. A versatile summerhouse and workshop/store provide additional space for hobbies or working from home.
Overview
- Charming 300-Year-Old Detached Period Barn
- Distinctive Black Timber Façade
- Generous Landscaped Garden
- Ample Parking & Gated Driveway
- Character-Filled Interiors
- Spacious Open-Plan Living Area
- Bespoke Shaker-Style Kitchen
- Three Stylish Bedrooms
- Modern Bathrooms
- Fantastic Outdoor Entertaining Space – Includes a sun terrace, outdoor bar & kitchen, summerhouse, large pond and workshop/store

Overview
Brook House Barn is a charming period property with a distinctive black timber façade, believed to be around 300 years old, thoughtfully converted in the 1980s and tastefully extended by the current owners into a flexible and beautifully presented family home.
Set back from the road behind a timber gate, the property features a generous driveway, ample parking, and a large, well-maintained landscaped garden that blends character with modern comfort, with open countryside views beyond.
Inside, the home opens with a striking study featuring vaulted ceiling, exposed beams and large picture windows, leading into a spacious open-plan living and dining area with warm oak flooring, stylish bi-fold doors, and a cosy log burner. A spiral staircase leads to a delightful mezzanine bedroom, while the inner hall provides access to a practical utility area and a sleek modern shower room.
The bespoke, well-equipped kitchen and family room features classic shaker-style cabinetry, solid oak worktops, a central island, and a welcoming seating area—ideal for everyday living and entertaining.
Upstairs, two further bedrooms include built-in wardrobes and enjoy lovely garden and countryside views. They are served by a well-appointed family bathroom with practical, stylish fittings and further views over the surrounding gardens and countryside beyond.
The generous rear garden is a standout feature, offering a peaceful open aspect with scenic views. The space includes a paved sun terrace, timber-framed, pitched tiled roof bar, outdoor kitchen, tranquil pond, and sweeping lawns bordered by mature trees and colourful planting. A versatile summerhouse and workshop/store provide additional space for hobbies or working from home.
Beautifully positioned on Salter Street in the desirable semi-rural setting of Hockley Heath, Brook House Barn enjoys the perfect balance of peaceful countryside living and outstanding connectivity. Surrounded by rolling fields and scenic walking routes, this sought-after location offers privacy and tranquillity while remaining close to a host of local amenities.
The property is just moments from the heart of Hockley Heath, a popular village with local shops, pubs, restaurants, and highly regarded schools. A wealth of charming nearby villages—including Lapworth, Earlswood, Tanworth-in-Arden, Cheswick Green, Knowle, and Dorridge—add to the area's appeal, each offering their own character, pubs, canals, and community life. The historic town of Henley-in-Arden and the leafy village of Tidbury Green are also within easy reach.
For more extensive shopping, dining, and leisure facilities, the vibrant town of Solihull is only a short drive away. The property also enjoys convenient access to the wider region, with Warwick, Stratford-upon-Avon, Leamington Spa, and Birmingham city centre all easily accessible.
Transport links are superb, with the M40, M42, M6, and M5 motorways close by, offering excellent road connectivity across the Midlands and beyond. Dorridge and Lapworth railway stations provide regular services to Birmingham, London Marylebone, and other key destinations, while Birmingham International Airport and NEC are within easy reach for both domestic and international travel.
Mains electricity, gas and water are connected to the property. Drainage is to a private treatment plant, which is located within the grounds.
Broadband and Mobile:
Standard broadband speed is available in the area, with a predicted highest available download speed of 20 Mbps and a predicted highest available upload speed of 1 Mbps.
Fibre to the Cabinet Broadband is available (This is a part-fibre connection). The vendor uses "Starlink” internet and the Mbps can be up to 300 and the upload speed 25 Mbps.
Mobile signal coverage (both voice and data) is available from the four major providers (O2, EE, Three, and Vodafone), with EE rated 88% likely, Vodafone 74% likely, O2 73% likely and Three 70% likely '. For more information, please visit: https://checker.ofcom.org.uk/
Council Tax:
Solihull District Council - Band F
Flood Risk:
This location is in 'Flood Zone 1' (Low Probability). For more information, please visit: https://www.gov.uk/check-long-term-flood-risk.
Fixtures & Fittings:
All those items mentioned in these particulars will be included in the sale, others, if any, are specifically excluded.
Tenure:
The property is Freehold and vacant possession will be given upon completion of the sale.
Viewing:
Strictly by prior appointment with Earles (01564 794 343 / 01789 330 915).
Earles is a Trading Style of 'John Earle & Son LLP' Registered in England. Company No: OC326726 for professional work and 'Earles Residential Ltd' Company No: 13260015 Agency & Lettings. Registered Office: Carleton House, 266 - 268 Stratford Road, Shirley, West Midlands, B90 3AD.
Viewing
Please note that all the above information has been provided by the vendor in good faith, but will need verification by the purchaser’s solicitor. Any areas, measurements or distances referred to are given as a guide only and are not precise. Floor plans are not drawn to scale and are provided as an indicative guide to help illustrate the general layout of the property only. The mention of any appliances and/or services in this description does not imply that they are in full and efficient working order and prospective purchasers should make their own investigations before finalising any agreement to purchase. It should not be assumed that any contents, furnishings or other items shown in photographs (which may have been taken with a wide angle lens) are included in the sale. Any reference to alterations to, or use of, any part of the property is not a statement that the necessary planning, building regulations, listed buildings or other consents have been obtained. We endeavour to make our details accurate and reliable, but they should not be relied on as statements or representations of fact and they do not constitute any part of an offer or contract. The seller does not give any warranty in relation to the property and we have no authority to do so on their behalf.

























